1. 「8m×8m」の正方形をベースとした合理的な設計
プラン名の通り、建物の外形が8000mm(8m)×8000mmの正方形で構成されています。
構造の安定性: 正方形は構造的に安定しやすく、耐震性能を高めやすい形状です。画像にも「耐震等級3」という最高等級の仕様。
コストパフォーマンス: 外壁の面積を最小限に抑えられるため、材料費や施工費の無駄を省ける合理的な設計です。
2. 高い断熱・省エネ性能
「断熱等級6」仕様であることが大きな特徴です。
これは、ZEH(ネット・ゼロ・エネルギー・ハウス)基準を上回る非常に高い断熱性能(HEAT20 G2レベル相当)を指しており、夏涼しく冬暖かい、光熱費を抑えた暮らしが期待できます。
3. 多彩なバリエーションと柔軟性
同じ8×8の枠組みの中で、暮らしに合わせて複数のパターンが用意されています。
平屋プラン: 「二人暮らし」を想定したコンパクトな1LDK〜2LDK。玄関の向き(南・西・東・北)に合わせて、中身を反転させるなどの調整が可能です。
2階建てプラン: 1階をLDK、2階を寝室や洋間とする構成で、延床面積を広げつつ、同じ正方形の基礎で建てることができます。
4. 充実の標準・オプション仕様
水回り: 「トイレ手洗いカウンター付き」や「キッチン家電・食器収納付き」がオプションとして用意されており、機能性が重視されています。
素材のこだわり: 標準はカラーフロアやクロスですが、オプションで「無垢フロアー」や「漆喰(しっくい)塗り」といった自然素材を選択できます。
価格帯(税抜)としては、平屋(約19坪)で1,741.5万円〜、2階建て(約29坪)で2,323.2万円〜と、性能を考慮するとコストを抑えた設定になっています。
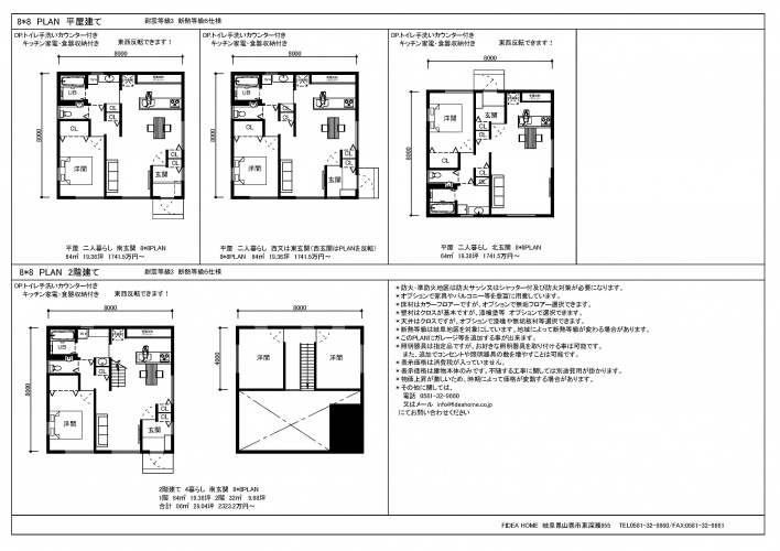
8×8 平屋PLAN 3PLAN
床面積 64㎡
価格:1741.5万円~
(消費税、諸経費は含まれていません。また準防火地区仕様の場合、別途費用が掛かります。)
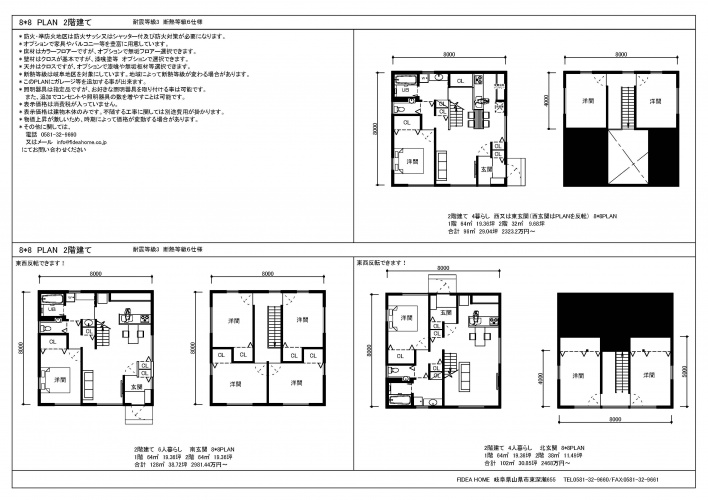
8×8×2 2階建てPLAN 1PLAN
1階床面積 56㎡ 2階床面積 34㎡ 合計床面積 90㎡
価格:2323.2万円~
(消費税、諸経費は含まれていません。また準防火地区仕様の場合、別途費用が掛かります。)
耐震等級3 断熱等級6 の高性能住宅です。
敷地も10m×15mの150㎡(45.37坪)あれば、車2台駐車する事が可能。
8×8×2 2階建てPLAN 3PLAN
1階床面積 56㎡ 2階床面積 34㎡ 合計床面積 90㎡
価格:2323.2万円~
(消費税、諸経費は含まれていません。また準防火地区仕様の場合、別途費用が掛かります。)
耐震等級3 断熱等級6 の高性能住宅です。
敷地も10m×15mの150㎡(45.37坪)あれば、車2台駐車する事が可能。
注意事項
*防火・準防火地区は防火サッシ又はシャッター付及び防火対策が必要になります。
*オプションで家具やバルコニー等を豊富に用意しています。
*床材は無垢フロアー。
*壁材はクロスが基本ですが、漆喰塗等 オプションで選択できます。
*天井は無垢板材ですが、オプションで漆喰やクロス等選択できます。
*断熱等級は岐阜地区を対象にしています。地域によって断熱等級が変わる場合があります。
*このPLANにガレージ等を追加する事が出来ます。
*照明器具は指定品ですが、お好きな照明器具を取り付ける事は可能です。
また、追加でコンセントや照明器具の数を増やすことは可能です。
*表示価格は消費税が入っていません。
*表示価格は建物本体のみです。不随する工事に関しては別途費用が掛かります。
*物価上昇が激しいため、時期によって価格が変動する場合があります。
*その他に関しては、
電話 0581-32-9660
メール info@fideahome.co.jp
当HPの『問い合わせフォーム』からでも大丈夫です。
お問い合わせください。